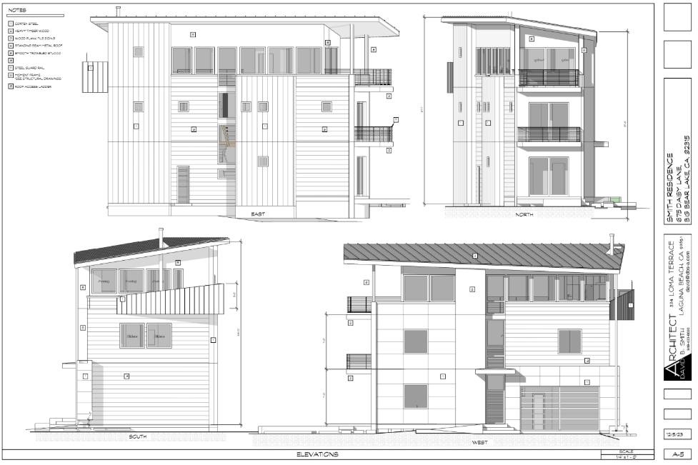
DELIVERABLES:

2D drafting packets (floor plans, elevations, sections, details)

Concept, permit & construction models

Still Renders, Animations, Virtual tours

Design board & presentation development

Redlines + revisions

INDUSTRIES:

Architecture

Interior Design

Industrial Design

Landscape Design

Furniture Design

Themed Design

PROGRAMS:

Sketchup & Layout (Expert)

Enscape, Twin-motion, D5 render (Expert)

Fusion 360 (Proficient)

Autocad (Proficient)

Teaching, training, consulting